

Passivhaus Plus Charlesworth
A unique Passivhaus Plus project
Project info
Date
Aug 21, 2019
Category
Retail Environments
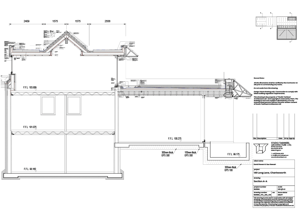
Over the coming weeks, we will be sharing more details and progress about a unique Passivhaus Plus project that we are honoured to have been appointed to. Once completed, this building will be the first ‘Passivhaus Plus’ self-build in the North West of England. STA have been brought on board mid-way through this exciting project and are eagerly working away on finalising many of its environmentally friendly features.









The process
For those who aren’t in the trade, you might be wondering what a ‘Passivhaus’ is. Read our quick guide below to find out what exactly constitutes a ‘Passivhaus’ and why this might benefit you and the environment.
What is a Passivhaus?
A Passive House or Passivhaus (in mainland Europe) is a voluntary design standard in sustainable house building that when followed correctly reduces a buildings ecological footprint. A house that conforms to this standard has to follow rigorous design and construction rules, which if done correctly results in the building extremely well insulated, completely airtight and highly energy efficient which in turn reduces the carbon footprint of the house.
Why would anyone go to this effort if these standards are only voluntary?
Lower energy bills– A Passivhaus provides its owner with a 75% reduction in its energy costs per year, in comparison to a traditional household. Super insulation, air tightness and efficient heat recovery systems mean that very little ‘extra’ energy is required to maintain an amiable internal temperature all year round. Although a heat recovery system uses some energy, measurements have shown that they save ten times more energy than they use. With energy prices rising and fossil fuels diminishing, a Passivhaus contributes not only to saving its owner money but saving the earths vital resources.
Cleaner internal air– Sometimes referred to as ‘breathing buildings’, a Passivhaus has a balanced ventilation and heat recovery system, meaning that fresh air from outside is drawn inside the house through a heat exchanger, past the stale air being extracted from the building. These air streams do not mix, meaning the house should maintain a fresh air supply at all times. This can be especially helpful for people who have health conditions, such as allergies by helping them maintain a healthy living environment by controlling humidity and eliminating mould and humidity.
Draft free home– Super-insulated walls and roof with the addition of triple-pane insulated glazing mean that alongside the heat exchange air is kept at ambient temperature which means no more drafts of cold spots in the Winter.
Smaller carbon footprint– Perhaps the most important factor, which is gained from all the complex environmentally friendly features, is that a Passivhaus has a much smaller carbon footprint than a traditionally built home. With society becoming more aware of climate change, people are becoming more aware of how to reduce their own carbon footprint, with a Passivhaus, this change can start at home.
What makes a house Passivhaus PLUS standard?
In order to take the next step in sustainable living, you can aim for the Passivhaus Plus standard. This is achieved when the house is capable of generating its own energy [≥60 kwh PER / (m²ground*a)] via renewable sources such as photovoltaics or wind turbines. This renewable energy is then used to power the heat recovery system, meaning that a building with Passivhaus Plus rating could in theory be self-sufficient.
How can you find out more?
If you are interested in finding out more about building your own Passivhaus, feel free to contact us here at Studio Tashkeel Architecture. We will be happy to advise how we can help you achieve your own environmentally friendly dream home.





